25 Rossdale Road Southwest
Offered at: $725,000
MLS®: A2257395
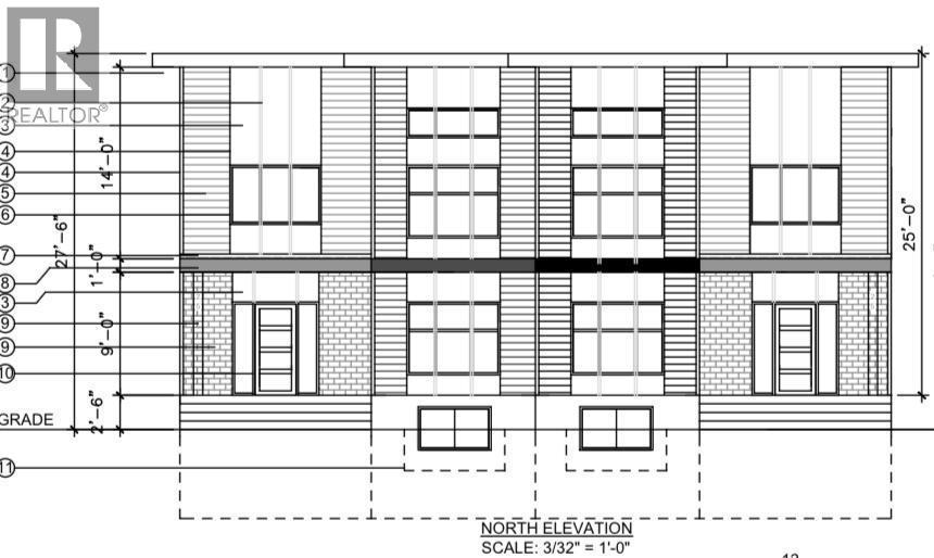
**ATTENTION INVESTORS, BUILDERS & DEVELOPERS!**Outstanding inner-city development opportunity in sought-after Rosscarrock! Situated on 5998 sq ft, this 60 ft × 100 ft RCG-zoned lot - ideal for redevelopment, rental income, or a hold-and-build strategy.The existing 3-bedroom bungalow with full basement features a new roof, new deck, and a sunny south-facing backyard on a large lot. An oversized double garage with 220V power and attic storage offers excellent functionality and income potential.Unbeatable location — steps to the 45th Street LRT, minutes to downtown, and close to Westbrook Mall, Optimist Park, Edworthy Park, and top schools. Quick access to Bow Trail, 17th Ave SW, and Sarcee Trail ensures easy connectivity citywide.With supportive zoning, strong infrastructure, and future growth potential, this is a prime investment or redevelopment site in Calgary’s vibrant inner city.DP plan available upon request. (id:6769)
Quick Stats
Key Home Data
1
BATH(S)
3
BED(S)
956
SQFT
YES
SHOWING AVAILABLE
Property Type:
Single Family Home Ownership:
Freehold
Payment Calculator
Calculate your monthly mortgage payment.
Mortgage Amount
$
Amortization
years
Payment Freq.
Interest Rate
%
Calculating...
All About the Details
See specific details below.
Neighbourhood Statistics
Get to know your neighbourhood.

