133 Versant Rise Southwest
Offered at: $754,900
MLS®: A2290341
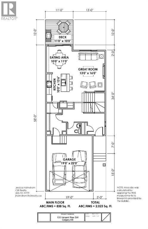
YOU’VE DONE ENOUGH MAKING-DO. IT’S TIME FOR A HOME THAT FINALLY MEETS YOU AT YOUR LEVEL.This Gabriel model from Homes by Avi was built for people who are done compromising—on storage, flow, and the way a home should support real life. The main floor begins with a mudroom that connects directly to a WALK-THROUGH PANTRY, because groceries shouldn’t require a logistics plan. The kitchen delivers: 50" UPPERS, a chimney hoodfan, a BUILT-IN WALL OVEN, a GAS COOKTOP with griddle, and a flush island with a BREAKFAST BAR that actually seats people. QUARTZ COUNTERTOPS with a soft white marble look and subtle veining pair with creamy light wall tile and matte-black hardware for a finish that feels elevated without trying too hard.The dining area is built for loud holidays and full tables, while the great room anchors the space with a FIREPLACE FRAMED IN TILE WITH A CLASSIC MANTLE and full-height presence. With QUICK POSSESSION available, this could be the year you stop squeezing celebrations into a home that’s outgrown you.Upstairs, a CENTRAL BONUS ROOM creates breathing room between the primary and secondary bedrooms. Both secondary bedrooms include walk-in closets—a small detail that makes everyday life easier. The primary offers a generous WALK-IN CLOSET and a five-piece ensuite with a SOAKER TUB and TILE-AND-GLASS SHOWER.There’s also a true UPSTAIRS OFFICE with a door you can close, plus a WALK-IN LAUNDRY ROOM with space to sort, fold, and keep life from spilling into the hallway.Downstairs, the WALKOUT BASEMENT gives you room to grow, with a LOWER-LEVEL ENTRY stepping directly out to the backyard beneath the raised deck above. And that RAISED DECK? It extends your dining space outward and lifts you high enough for BETTER VIEWS and clear sightlines across the yard—perfect for summer evenings, morning coffee, or keeping an eye on what’s happening below.Located in Vermilion Hill at Alpine Park, this community is shaped by natural elevation, pathways, and long sou th and west views. It’s connected, forward-thinking, and designed to grow beautifully over time.If this already feels like a better fit than where you are now, COME SEE IT IN PERSON.• PLEASE NOTE: Photos are of a finished Showhome of the same model – fit and finish may differ on finished spec home. Interior selections and floorplans shown in photos. (id:6769)
Quick Stats
Key Home Data
3
BATH(S)
3
BED(S)
2023
SQFT
YES
SHOWING AVAILABLE
Property Type:
Single Family Home Ownership:
Freehold
Payment Calculator
Calculate your monthly mortgage payment.
Mortgage Amount
$
Amortization
years
Payment Freq.
Interest Rate
%
Calculating...
All About the Details
See specific details below.
Neighbourhood Statistics
Get to know your neighbourhood.

